Watery Lane, Scropton, DE65

For Sale Offers in Region of, £600,000

4 2 2

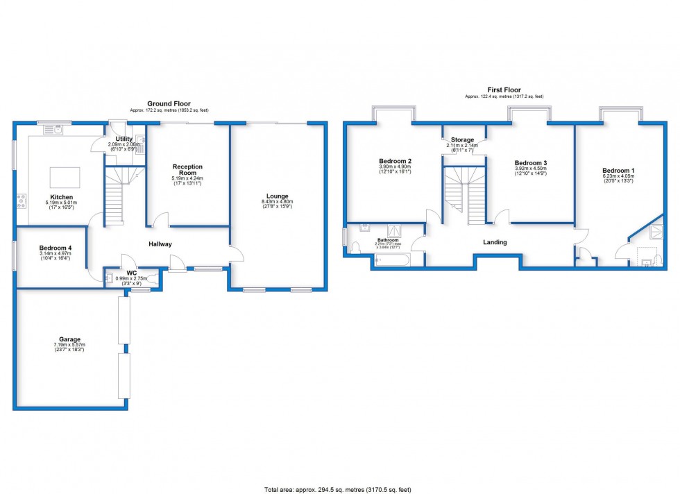
THIS 4 BEDROOM DETACHED HOME IS IN A GREAT LOCATION WITH FANTASTIC VIEWS, GIVING YOU COUNTRY LIVING WITH A MODERN FEEL. There’s spacious living downstairs with a living room, kitchen diner, downstairs bedroom 4 and WC, along with 3 further large double bedrooms upstairs and an en-suite wet room to bedroom 1. Outside you have a double garage, large driveway and the garden is a great space with amazing views!

Our Agent Mikaela Says:

“This is such a beautiful home, tucked away at the end of a private driveway in a lovely countryside location. As you head inside, the large entrance hallway with exposed brickwork gives you a great insight into the rest of the house. The living room is a great space running front to back of the home, with the continuing theme of exposed brickwork to showcase the log burner, making a lovely focal point. There are beams running across the ceiling, giving a real country feel, complimented by neutral décor and natural light flowing through the room from the front window and the sliding doors at the back. The next room is a large reception room, where you could create a separate living space, perfect for a larger family. There are sliding patio doors out into the garden, so if you love to entertain, this could be a great room to allow your guests to flow in and out! The kitchen/diner feels like the perfect space, where no matter how large your family, you could come together to enjoy meal times. Surrounded by beautiful countryside views, housing a large oven and plenty of counter top space, including an island in the middle, you can really imagine some fantastic memories being made in here. Adjacent is the utility, with plenty of room for both washing appliances as well as even more storage and worktop space! 

The fourth bedroom is downstairs, which could make the perfect space for someone less mobile, a guest or even a teen! Currently doubled up as an office space, I think this is a great versatile space and has a handy WC just next door. As you head upstairs the hallway mirrors that of the downstairs, where there's even enough room for a cosy armchair tucked into one of the eaves. I was so impressed with the size of all three bedrooms upstairs. The second and third bedrooms are large doubles, adjoined through a great storage room (with the potential to be a Jack & Jill en-suite!), as well as some great storage that has been created in the eaves of the house. I think bedroom 1 is just perfect, with built in storage, space for a king size bed and even a sofa, this room feels like a real retreat. The en-suite was newly fitted just a few months ago, creating a modern wet room. The views out of all three bedrooms are amazing, looking out to the beautiful countryside.

The outside space of this house is a true compliment to the indoors, with a large south facing garden and low fences looking out to the surrounding fields. There is a large double garage attached to the house which has been fully boarded above, providing tons of storage space! There’s a large driveway space too for at least 4 vehicles. I think this would make the perfect family home.”

Our Sellers Thoughts:

The house has been fantastic for entertaining — whether it’s garden barbecues, birthday parties, or relaxed evenings with friends, there’s plenty of space for everyone to enjoy. We’ve made so many happy memories here, and the local park and green spaces, have been a big part of family life. It’s a home that just feels like a holiday every day — and we know the next family will love it just as much as we have.”

The Area:

Scropton Village is a lovely country location, with some fantastic places to walk. Conveniently positioned near amenities in the villages of Hatton and Sudbury, including shops, a post office, a primary school, and local pubs. Scropton has excellent transport links providing easy access to Burton upon Trent, Uttoxeter and Derby. 

  • 4 BEDROOM DETACHED HOUSE
  • EPC RATING D
  • KITCHEN/DINER
  • 4 LARGE DOUBLE BEDROOMS
  • NEW EN-SUITE WET ROOM
  • DOUBLE GARAGE
  • GREAT LOCATION, TUCKED AWAY OFF A PRIVATE DRIVEWAY
  • BEAUTIFUL VIEWS
Floorplan for Watery Lane, Scropton, DE65
EPC Graph for Watery Lane, Scropton, DE65
Similar Properties

Book Your Expert Valuation

Find out how much your property is worth